Direktanfrage

zur Immobilie #709-1

    Ihre persönlichen Daten

    Was können wir für Sie tun?

    Wie sollen wir mit Ihnen in Kontakt treten?

    Erreichbarkeit für Rückruf (falls Kontakt via Telefon)

    Können wir Ihnen einen besonderen Wunsch erfüllen?



    Die Datenübertragung erfolgt verschlüsselt via SSL.
    Die *gekennzeichneten Felder sind Pflichtfelder.

    #709-1 Zweifamilienhaus in 42899 Remscheid

    Top ausgestattetes Ein-/Zweifamilienhaus in verkehrsgünstiger Lage

    +++ Preisreduzierung +++ Preisreduzierung +++

    #709-1 Zweifamilienhaus in 42899 Remscheid

    Top ausgestattetes Ein-/Zweifamilienhaus in verkehrsgünstiger Lage

    Über diese Immobilie

    ALT UND NEU - PERFEKT VEREINT!!

    Im Jahre 2004 hat ein ursprüngliches Einfamilienhaus einen Anbau erhalten, was baulich zum derzeitigen Istzustand geführt hat.

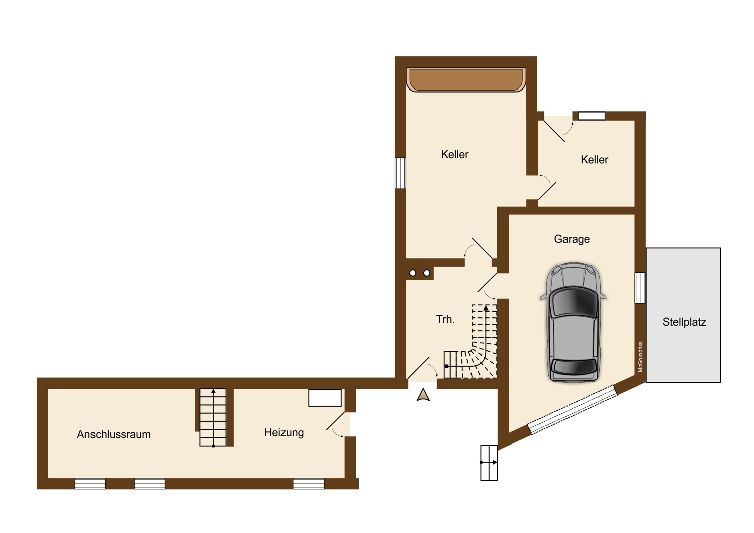
    Sie betreten das Haus im Untergeschoss, in dem sich auf einer Nutzfläche von etwa 110m² folgende Räumlichkeiten befinden:
    Heizungs- und Anschlussraum (im Altbau), Treppenhaus, Sauna- und Duschbereich, WC, Kellerraum und Garage. Die Garage hat einen direkten Zugang zum Treppenhaus.

    Über dieses gelangen Sie ins Erdgeschoss, in dem der Zugang zu 2 Wohneinheiten gegeben ist.

    Der derzeitige Eigentümer hat die Immobilie als Zweigenerationenhaus zusammen mit der Mutter bewohnt, die ihr eigenes Reich auf dieser Ebene des Neubaus hatte. Auf rd. 64m² standen ihr 2 Zimmer, Flur, Wohnküche und ein Badezimmer zur Verfügung. Im Wohnzimmer ist ein Kamin installiert, von diesem Raum besteht ein Zugang auf die Terrasse.

    Der restliche Teil des Erdgeschosses ist im Altbau untergebracht, der neben einem großzügigen Esszimmer (bisherige Nutzung) von 30 m² Größe über eine Diele, die Küche, WC und Kinderzimmer verfügt. Auch von dieser Seite gibt es 2 Möglichkeiten Zugang zur Terrasse zu erlangen.

    Das Dachgeschoss schließlich wurde vom Eigentümer über die gesamte Fläche von ca. 62m² allein genutzt. Ein Teil des Dachgeschosses des Altbaus ist zwar wohnlich ausgebaut, doch, wegen zu geringer Deckenhöhe, nicht in der hier genannten Wohnfläche enthalten. Hierin enthalten ist auch ein phantastisches Badezimmer, das mit teilfreistehender Wanne, Dusche, 3 Waschtischen, WC in hochwertioger Ausführung keine Wünsche offen lässt.

    Insgesamt verfügt die Immobilie über eine reine Wohnfläche von rd. 199m².

    Ebenfalls nicht hierin enthalten ist die großzügige Terrassenanlage. Diese bildet den Ausgangspunkt des hinteren, nach Westen ausgerichteten Grundstücks. Dieses ist aufwändig angelegt und bietet neben 2 Gewächshäusern, einen Teich mit Wasserlauf, einen überdachten Grillplatz, eine Sitzecke mit Feuerstelle, eine Außendusche und ein massives Gartenhaus, in dem die Möglichkeit besteht, eine Küche zu installieren. Abgerundet wird das positive Bild des Außenbereichs durch ein Holzlager, in dem Sie Ihr Kaminholz schlagen und lagern können.

    Mit einer Wohnfläche von knapp 200m² bietet dieses Zweifamilienhaus genügend Raum für individuelle Gestaltungsmöglichkeiten und das harmonische Zusammenleben mehrerer Generationen.

    Der Kaufpreis von 497.000 € spiegelt die Qualität und das Potenzial dieser Immobilie wider, die sowohl durch ihre Lage als auch durch ihre Ausstattung überzeugt.

    Die Küche der Hauptwohnung und die Sauna im Erdgeschoss können optional erworben werden.

    Aktuell wurde das Objekt rein wohnlich genutzt, durch die Lage im Mischgebiet wäre auch eine gewerbliche Nutzung der Immobilie denkbar.

    Gewinnen Sie einen ersten Eindruck durch unser aussagekräftiges Video:

    https://youtu.be/hKkZRXM_o3U

    Ausstattung

    Das Ursprungshaus stammt aus dem Jahre 1910.
    Es wurde seit dem Anbau im Jahre 2004 weitestgehend kernsaniert.
    Die Gesamtanlage ist in den vergangenen 20 Jahren fortlaufend renoviert und modernisiert worden.

    - Ursprungsbaujahr 1910 - kernsaniert ab 2004
    - Anbau in 2004
    - Grundstücksgröße 622m²
    - Wohn-/Nutzfläche etwa 350m².
    - 7 Zimmer, 3 Badezimmer, 2 Küchen, WC, diverse Nebenflächen

    Zu den heutigen Ausstattungsmerkmalen gehören u.a.:

    - Gas-Brennwertheizung aus dem Jahre 2019, teilweise als Fußbodenheizung ausgelegt
    - neue Dachfläche (Altbau), inkl. Isolierung aus 2012
    - Installation eines BUS(EIB)-Systems zur Steuerung von Rollläden, Schaltern, Steckdosen etc.
    - insgesamt hochwertige Ausstattung im Bereich Wand-/Bodenbeläge und Sanitär
    - 3 Badezimmer
    - 2 Kamine
    - diverse Edelstahlarbeiten
    - Garage
    - Teichanlage mit Wasserlauf
    - massives Gartenhaus
    - überdachter Grillplatz
    - Sitzecke
    - Holzunterstand/-lager
    - 2 Gewächshäuser
    - Außendusche

    Diese Aufzählung umfasst wahrscheinlich nicht alle Highlights der Immobilie, aus diesem Grund laden wir Sie gerne zu einem persönlichen Besichtigungstermin ein, um sich von der Qualität dieses Angebotes zu überzeugen.

    Herr Dirk Mosler

    Ihr Ansprechpartner

    Dirk Mosler

    Objektbilder

    Objekt- und Energiedaten

    Details

    • Objektart Zweifamilienhaus
    • Baujahr 2004
    • Zustand Modernisiert

    Flächen

    • Anzahl Zimmer 7
    • Wohnfläche 199,01 m²
    • Grundstücksfläche 622 m²
    • Nutzfläche 150 m²
    • Anzahl Schlafzimmer 4
    • Anzahl Badezimmer 3
    • Anzahl seperate WCs 1
    • Einliegerwohnung Ja

    Ausstattung

    • Stellplatzart Garage
    • Unterkellert Ja

    Preise

    • Kaufpreis 497.000 €
    • Provision Verkäufer und Käufer zahlen je 3,00%, inkl. gesetzlicher MWSt vom beurkundeten Kaufpreis

    Energieausweis

    • Bedarfsausweis
    • Endenergiebedarf: 157,9 kWh/m² a
    • Mit Warmwasser: Nein
    • Baujahr Anlagentechnik: 2019
    • Energieeffizienzklasse: E
    • Primärer Energieträger: Gas
    • Erstellt am: 30.04.2023
    • Gültig bis: 09.05.2033
    • Gebäudeart: wohn
    157,9 kWh/m² a

    Grundrisse und Pläne

    HINWEIS: Pläne sind u. U. nicht maßstabsgetreu.

    Lage der Immobilie

    Die Immobilie liegt in Remscheid auf der Stadtgrenze zwischen Lennep und Lüttringhausen. Beide Ortsteile zeichnen sich durch ihre Altstädte aus. Vor allem Lennep mit seinem kulinarischen und kulturellen Angebot in historischer Atmosphäre bietet eine Reihe von Annehmlichkeiten.

    Kindergärten und schulische Einrichtungen sowie Einkaufsmöglichkeiten für den täglichen Bedarf erreichen Sie innerhalb von 10 Minuten.

    Von Ihrem neuen Domizil aus können Sie in lange Wanderungen oder Ausflüge mit dem Fahrrad starten. Für sportliche Aktivitäten steht Ihnen die Sportanlage Hackenberg mit der angrenzenden Schwimmbad H2O zur Verfügung, beides liegt keine 10 Minuten mit dem Auto entfernt.
    Die Umgebung bietet zudem mehrere Spielplätze, die alle innerhalb von 10 Minuten zu Fuß erreichbar sind, und somit zahlreiche Möglichkeiten für Spiel und Spaß im Freien bieten.

    Die Anbindung an den öffentlichen Nahverkehr ist gut, mit der Bushaltestelle Blume nur ca. 2 Minuten entfernt. Die Autobahn A1 ist Luftlinie etwa 400 Meter entfernt. Für Pendler Richtung Köln oder ins Ruhrgebiet absolut vorteilhaft, allerdings auch mit einer gewissen Geräuschkulisse verbunden.
    Die nächsten Flughäfen, Köln-/Bonn bzw. Düsseldorf, sind beide in ca. 45 Minuten mit dem Auto erreichbar und bieten Anbindungen an nationale und internationale Ziele.

    zur Karte

    HINWEIS: Der Umgebungsplan zeigt nur die ungefähre Lage eines Objekts. Der tatsächliche Standort kann in Einzelfällen mehrere Kilometer von der angezeigten Position entfernt liegen. Detaillierte Informationen erhalten Sie gerne auf Anfrage.

    Sonstige Angaben

    Gerne bringen wir Ihnen diese Immobilie in einem persönlichen Besichtigungstermin näher.
    Bitte setzen Sie sich zur Terminabsprache kurzfristig mit unserem Büro in Verbindung.

    Alle unsere Angebote finden Sie auf unserer Website: www.mosler-immobilien.de.